K's Style Designの中古物件リフォーム事例
安部ビル
リフォーム概要

|
安部ビル(愛媛県松山市) |
|
| 施工内容 | リノベーション |
|
地域 |
愛媛県松山市 |
|
工期 |
3週間 |
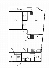
間取り図
![]() |
|
| Before | After |
BEFORE - 施工前 -
![]() |
![]() |
| 部屋数も多く、各部屋広い 間取りのお部屋でした。 |
|
![]() |
|
施工中
|
![]() |
![]() |
AFTER − 施工後 −
![]() |
![]() |
| お部屋のアクセントのR壁に グリーンのクロスを貼りました。 |
キッチンは日当たり良好です。 |
![]() |
![]() |
| 広いサニタリースペース | |
![]() |
|
|
リノベーションのポイント |
| 3LDKから2LDKへ間取り変更。 広いLDKは開放感があり、落ち着いた雰囲気になっています。 |
愛媛で空室対策・満室経営をお考えのオーナー様はお気軽にお問い合わせください
![]() |




















