K's Style Designの中古物件リフォーム事例
グリーンハイツⅠ(愛媛県今治市)
リフォーム概要

|
グリーンハイツⅠ(愛媛県今治市) |
|
| 施工内容 | リノベーション・間取り変更・内装仕様変更 |
|
地域 |
愛媛県今治市 |
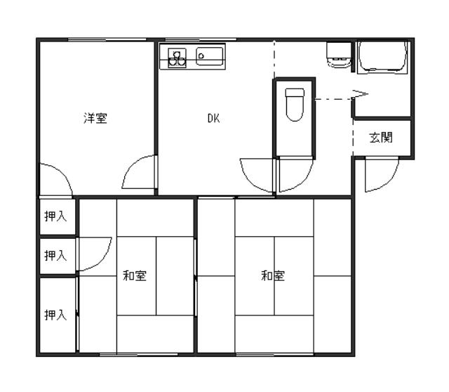
間取り図(Before)
.jpg)
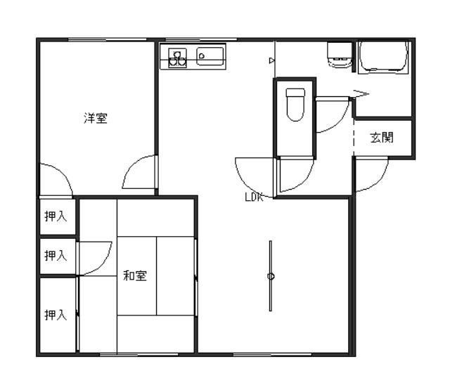
間取り図(After)
.jpg)
BEFORE - 施工前 -
![]() |
![]() |
![]() |
|
AFTER - 施工後 ‐
![]() |
![]() |
| 元々和室だったお部屋は、開放感のあるLDKになりました。ソファーを置いても広く使えます。 |
LDKが広くなったので、ダイニングセットを置いてもスペースに余裕があります。 |
|
|
| お部屋の雰囲気に合わせて、和室も落ち着いたイメージに仕上げました。 |
トイレは正面の壁にアクセントクロスを貼り、床を貼り替えました。 |
|
リノベーションのポイント |
3DKから2LDKへ間取り変更し、風の通る開放的なお部屋になりました。敬遠されがちな和室も、クロスを貼り替えるだけでモダンな和室に生まれ変わりました。施工後すぐに入居が決まりました! |
愛媛で空室対策・満室経営をお考えのオーナー様はお気軽にお問い合わせください
![]() |













